Bedrijfsonroerend goed
op zoek
naar een bedrijfspand?
overzicht aanbod
vind uw bedrijfspand
Regio 0165 | Roosendaal & Halderberge
Roosendaal – Passage 25

Met TROTS! bieden wij u aan te huur: Passage 25-27
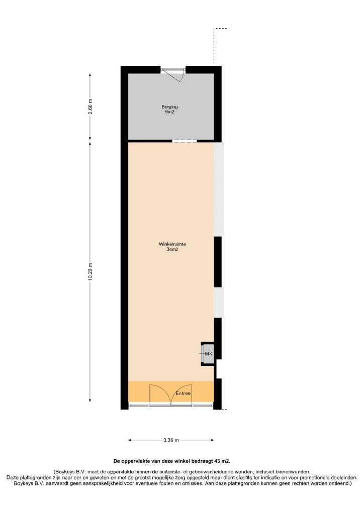
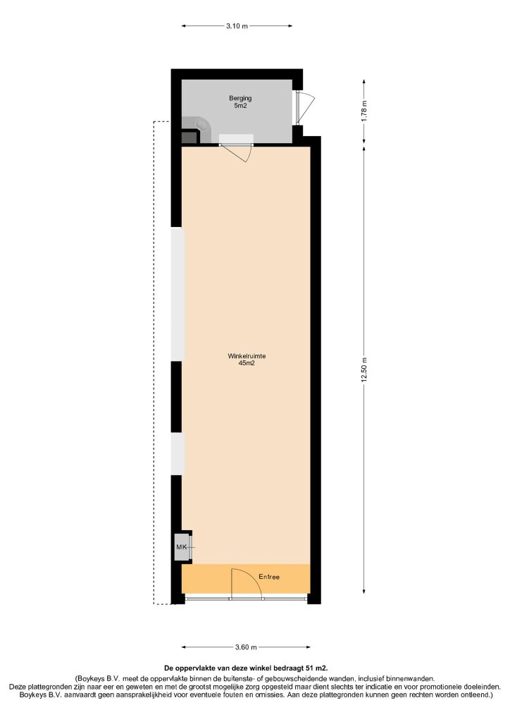
In het unieke winkelcentrum de Passage te Roosendaal gelegen winkelruimte van in totaal 98 m² met een frontbreedte van 7 meter.
De Passage is gelegen in het hart van de binnenstad van Roosendaal en verbindt de Nieuwe Markt met de pittoreske Raadhuisstraat.
Na een grondige revitalisering ademt het complete winkelcentrum een Venetiaanse sfeer uit met een vleugje Jugendstil en Art Deco.
Bestaande uit 2 aan elkaar gekoppelde winkelruimtes welke ook eventueel appartement te huur zijn dan zijn het 2 winkels met ieder een pantry, toilet en klein magazijn van respectievelijk 43 en 55 vierkante meter.
De Passage is goed en gemakkelijke te bereiken zowel per eigen als met openbaar vervoer en bevindt zich op loopafstand van het NS-station.
Per direct beschikbaar.
• Huurprijs: € 1.600,- per maand
• Voorschot promotie- en servicekosten: € 265,-
• Oppervlakte: 98m²
• Huurtermijn: Bespreekbaar
• Aanvaarding: Per direct
• Zekerheidsstelling: Bankgarantie 3 maanden van de bruto huurprijs
• Indexering: Jaarlijks conform consumenten prijsindexcijfer CPS
• Ligging: In het winkelcentrum De Passage, centraal in Roosendaal
• Bereikbaarheid: Goed met openbaar vervoer en met de auto
•. Parkeergelegenheid: In de nabije omgeving diverse parkeergarages (betaald)




















